Проект одноэтажной бани КББ71 с мангальной зоной
| Количество этажей: | 1 |
| Фундамент: | ленточный на ж/б сваях |
| Стены: | клееный брус 210х180 мм. |
| Кровля: | металлочерепица |
| Окна: | пластиковые |
| Входная дверь: | металлическая |
| Опции: | мангальная зона |
| Готовый проект - БЕСПЛАТНО!!! |
Описание
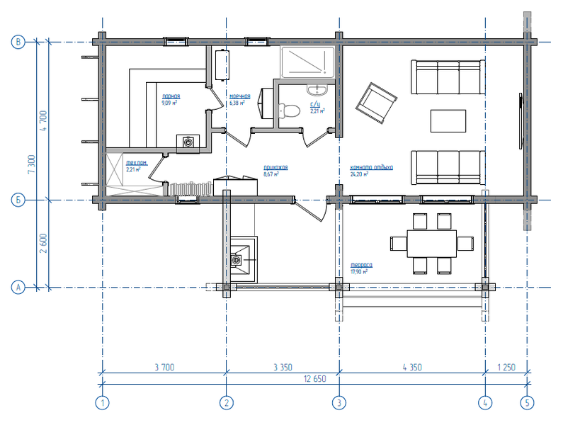
Проект одноэтажной деревянной бани с открытой террасой КББ71, на которой возможно оборудовать мангальную зону.
Площадь пола первого этажа бани - 70,7 м2
В том числе, площадь террасы - 17,9 м2
Объем силовой конструкции бани (наружные и внутренние стены, балки перекрытия): 31,28 м3
Что входит в указанные комплектации?
В комплектацию Домокомплект входит:
1. Гарантия до 7 лет на отдельные виды работ
2. Срок службы минимум 50 лет
3. Стеновой комплект
- наружные и внутренние стены из профилированного клееного бруса с запиленными чашами сечением 150х180 мм (австрийский профиль с тройным уплотнением)
4. Подкладочная доска – лиственница
5. Межэтажные балки перекрытия
6. Конструкционные столбы из клееного бруса
7. Лаги пола клееные
В комплектацию Домокомплект+Сборка входит:
1. Гарантия до 7 лет на отдельные виды работ
2. Срок службы минимум 50 лет
3. Стеновой комплект
- наружные и внутренние стены из профилированного клееного бруса с запиленными чашами сечением 150х180 мм (австрийский профиль с тройным уплотнением)
4. Подкладочная доска – лиственница сухая калиброванная
5. Межэтажные балки перекрытия клееные 200х100 мм.
6. Конструкционные столбы из клееного бруса
7. Лаги пола клееные
8. Работы по сборке домокомплекта, включая расходные материалы
9. Электромонтажные работы (работа + материал)
- составление схемы и плана электропроводки
- скрытая разводка в гофрированном шланге кабеля ВВГНг
В комплектацию Теплый контур входит:
1. Гарантия до 7 лет на отдельные виды работ
2. Срок службы минимум 50 лет
3. Фундамент (работа + материал)
- ленточный фундамент ростверк 600х400 мм.
- буроналивные сваи диаметром 300х3000 мм.
- разбивка осей, нивелировка
- арматура 12 мм.
- бетон М-300 сертифицированный
- подсыпка щебня
4. Стеновой комплект
- наружные и внутренние стены из профилированного клееного бруса с запиленными чашами сечением 150х180 мм (австрийский профиль с тройным уплотнением)
- подкладочная доска – лиственница сухая калиброванная
- межэтажные балки перекрытия клееные 200х100 мм.
- конструкционные столбы из клееного бруса
- лаги пола клееные
5. Работы по сборке домокомплекта, включая все расходные материалы
6. Обустройство кровельной системы из металлочерепицы (работа + материал)
- стропильная система
- обрешетка вентилируемой кровли
- обработка огнебиозащитным составом Caysar (от возгорания, гниения, плесени) всех деревянных элементов
- парогидроизоляция мембранного типа
- подшивка свесов кровли
7. Устройство черновых полов (работа + материал)
- черновая доска
- пароизоляционная мембрана
8. Установка пластиковых окон (работа + материал)
9. Монтаж входной двери – металлической (работа + материал)
10. Электромонтажные работы (работа + материал)
- составление схемы и плана электропроводки
- скрытая разводка в гофрированном шланге кабеля ВВГНг
Заказать звонок